EmiliO
das zeitlos elegante Fertigteilhaus von Dreipunkthaus GmbH in Kärnten
Emilio
Unser klassischer Bungalow EMILIO besticht vor allem durch seine elegante Ästhetik und eine Fülle an Gestaltungsmöglichkeiten, die es erlaubt, dieses hochwertige Ziegelmassivhaus an die individuellen Wohnbedürfnisse des Kunden anzupassen. Der weitläufige und offene Wohn-Ess-Bereich lädt zum Verweilen und Beisammensein ein und der geschützte Terrassenbereich lässt das Drinnen und Draußen verschmelzen – so können Sie Ihre Terrasse auch an regnerischen Tagen genießen!
EMILIO – der vielseitige Bungalow von Dreipunkthaus GmbH
Durch seine offene und loftartige Gestaltung bietet das EMILIO-Ziegelmassivhaus exklusives Wohngefühl auf einer Ebene. Dabei steht Ihnen genug Platz zur Verfügung, um sich zu verwirklichen: Schaffen Sie sich Raum für Fitness und Wellness, ein Gästezimmer – oder doch lieber ein Home Office? Ihre Wohnbedürfnisse stehen für uns bei der Planung im Vordergrund! Egal, ob Sie sich für das moderne EMILIO Flachdach oder das klassische EMILIO Walmdach entscheiden – Sie entscheiden sich in jedem Fall für höchste Qualität in Ausführung und Ausstattung!
Walmdach:
Flachdach:
Gerne sind wir für Ihre Fragen rund um unsere flexiblen Ziegelmassivhäuser da – kontaktieren Sie uns oder laden Sie unsere Datenblätter herunter.
| Wohnfläche | |
| Erdgeschoss: | 117,44 m² |
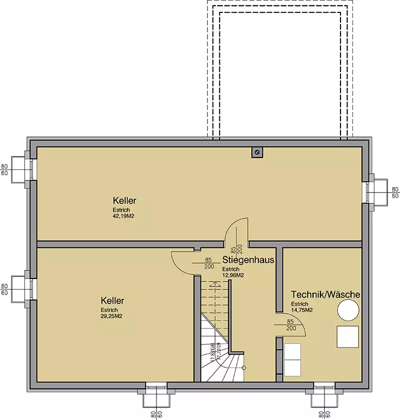
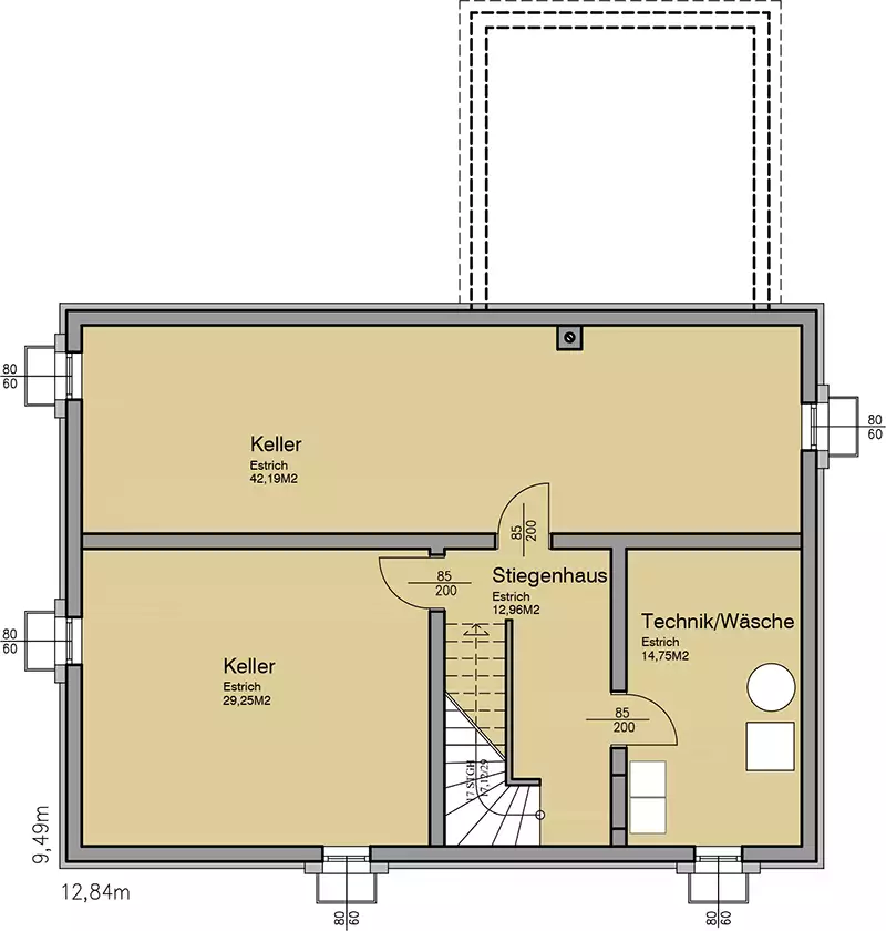
| Kellergeschoss: | 99,15 m² |
| Technische und planerische Änderungen vorbehalten | |